1 .. 199 200 201 202 203 204 205 206 207 208 209 .. 256
Catálogo tarifa industrial - Acumuladores Buderus 2011
203
4
Acumuladores
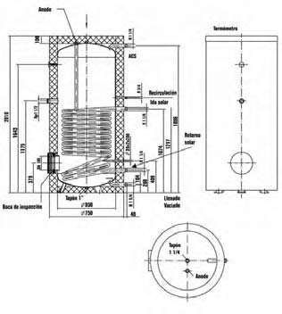
Interacumuladores de agua caliente sanitaria Logalux ER (400/750 litros)
Logalux ER / ER W
S 750
(1) en 24 horas; con una temperatura del agua del acumulador de 60° C.
Entrada de agua fría: 10° C. Temperatura del agua de calefacción: 80° C.
W: Color blanco del acumulador.
(2) Para un caudal de 2m
3
/h
T
ipos
S 400 ER / ERW
S 500 ER / ERW
S 750 ER / ERW
Capacidad del acumulador
[l]
377
465
733
Contenido del intercambiador
[l]
8,5
10,4
16,6
Potencia de mantenimiento
1)
[kwh/24h]
2,6
3
3,2
Presión máx. del agua de calefacción / agua sanitaria
[bar]
10 / 10
10 / 10
10 / 10
Temp. máx. del agua de calefacción / agua sanitaria
[°C]
110 / 95
110 / 95
110 / 95
Índice de demanda NL a 60°C
12
18
28
Caudal continuo a 45°C
[l/h]
830
1015
1626
Potencia de funcionamiento a caudal continuo a 45°C
[kW]
33,9
41,4
66,4
Caudal continuo a 60°C
[l/h]
432
527
847
Potencia de funcionamiento a caudal continuo a 60°C
[kW]
25,4
31
49,8
Caudal de agua de primario
[m
3
/h]
1,3
1,3
1,3
Pérdidas de carga
2)
[mbar]
32
40
60
Peso (con/sin embalaje)
[kg]
115/108
129/128
219/210
Superficie de intercambiador
[m
2
]
1,2
1,5
2,4
Datos técnicos Logalux Serie ER / ER W
S 400 / S 500
X